









詳細情報
価格
2,580万円
所在地
熊本県菊池市泗水町福本1123番8
交通
バス停 バイパス高江まで徒歩17分
通学区
菊池市泗水小学校まで1,236m 菊池市泗水中学校まで966m
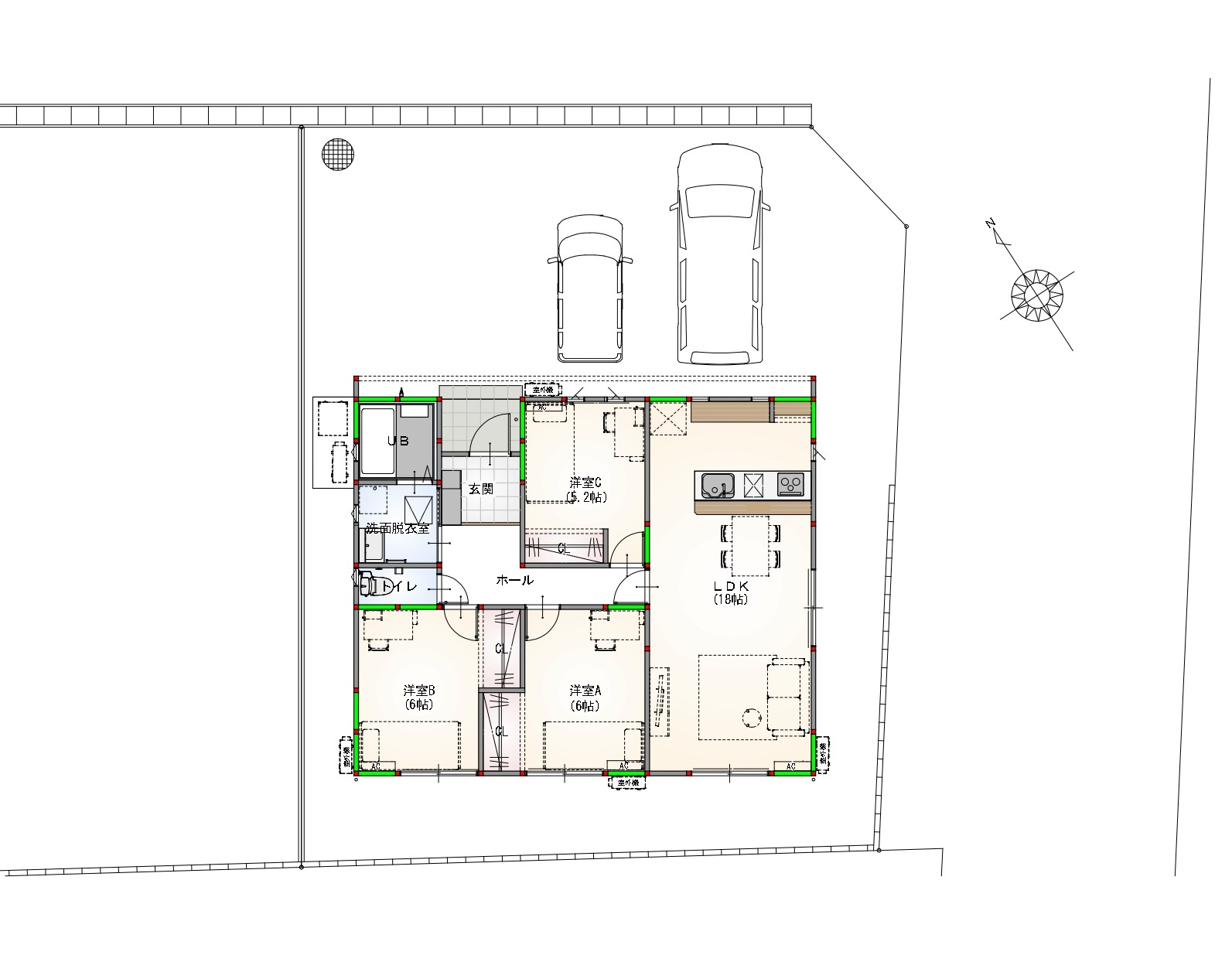
間取り
3LDK
建物面積
79.79㎡
築年月
令和8年7月完成予定
階数
平屋建て
土地面積
205.38㎡
建ぺい率/容積率
70%/200%
地目
宅地
用途地域
無指定
接面道路
北側幅員6m 公道接面12.5m 東側幅員6.5m 私道接面13.6m
取引形態
売主
引き渡し
時期などはご相談ください
営業時間 9:00〜18:00(水曜定休)
熊本で家づくりをお考えの方、ローコストの注文住宅や建売住宅、
土地売買のことなら株式会社ライプにお任せください!
☆月々の住宅ローン5万円台で購入可能な新築3LDKの平屋が泗水町福本にて建築中です。太陽光6.16KW搭載で月々の電気代を削減し売電収入により家計の負担を減らしてくれます。
人気の菊陽町・合志市からも近くで、静かな住環境。
太陽光発電システム6.16KW搭載し、月々の電気代を大幅削減し売電収入により家計の負担を減らしてくれます。
また電気自動車用「EVコンセント」で電気自動車を購入の際は自宅で充電が可能。
我慢せずに電気代を節約したお金で、旅行に行ったり、外食を楽しんだり、子供の学費のために貯蓄、老後の貯蓄など買ったあとも幸せが続く
「暮らしの豊かさ」がある家です。
※住宅ローン額の算出は、地方銀行金利1.275% 50年 ボーナス払い無しでの算出となります。