









詳細情報
価格
おかげさまで成約済みとなりました
所在地
山鹿市中684-11
交通
バス停 鹿本通一丁目 徒歩5分
通学区
山鹿小学校・山鹿中学校
間取り
4LDK
建物面積
103.23㎡【31.22坪】
築年月
令和8年1月完成
階数
2階建て
土地面積
183.91㎡【55.63坪】
建ぺい率/容積率
40%/80%
地目
宅地
用途地域
第一種低層住居専用地域
接面道路
西4.0m私道 接道4.0m
取引形態
売主
引き渡し
相談
営業時間 9:00〜18:00(水曜定休)
熊本で家づくりをお考えの方、ローコストの注文住宅や建売住宅、
土地売買のことなら株式会社ライプにお任せください!
【オープンハウスのご案内】写真では分からない「居心地」を体感
この度は、山鹿エリアでオープンハウスを開催する運びとなりました。
「間取図は見ているけれど、実際の広さの感覚が掴めない」
「自分たちが建てたい家のイメージが、まだぼんやりしている」
そんなお悩みをお持ちの方へ間取りの相談や、住宅ローンの相談等の行っております。
【今回の見どころ】
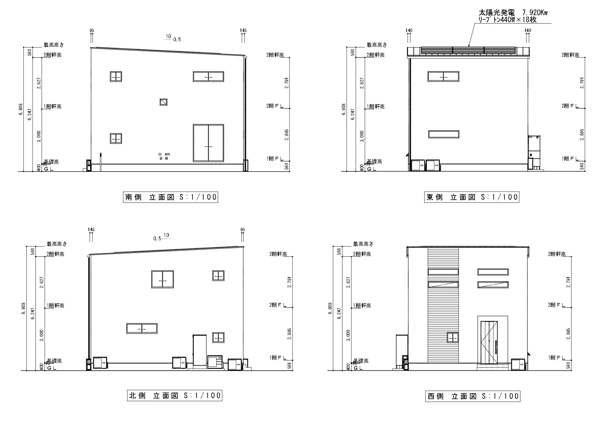
〇光熱費を賢く削減: 太陽光発電7.92kWを搭載した、家計に優しいオール電化住宅
〇等身大のサイズ感: 2階建て32坪・4LDKの「一番参考にしやすい」間取り
〇快適な生活設備: 1階と2階の両方にトイレ・洗面化粧台を完備した、忙しい朝も安心の設計
リビングの広さや、各居室の広さなど実際の空気感をぜひお確かめください。
また、本物件は実際に販売中のため、建物価格や諸費用など、具体的で透明性のある家づくりの計画についても詳しくご相談いただけます。